Lichtdurchflutetes 1-2 Familienhaus mit Garage, Terrasse und Schrebergarten in Neef, Mosel

56858 Neef, Haus zum Kauf

Referenz

Dieses Objekt wurde bereits erfolgreich vermittelt.

Objekt­beschreibung

Beschreibung

KG: voll unterkellert.

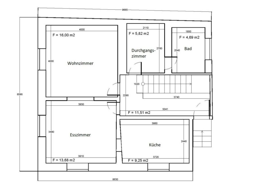
EG: Flur, Küche, Esszimmer, Wohnzimmer, Durchgangszimmer zum Bad, Bad mit Badewanne.

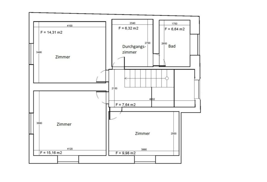
1. OG: Flur, 3 Zimmer, Durchgangszimmer zum Bad, Bad mit Badewanne.

Speicher: ausbaufähig, zurzeit Abstellfläche.

Dieses geräumige lichtdurchflutete 1-2-Familienhaus wurde im Jahr 1947 errichtet. In den 70er Jahren ist zusätzlich die Garage mit der Dachterrasse entstanden. In den 90-er Jahren wurden beide Bäder renoviert und im gesamten Haus doppelt-verglaste Fenster eingebaut. Nach der Durchführung von notwendiger Modernisierungs- und Renovierungsmaßnahmen, inklusive Einbaus eines Heizsystems, kann hier ein großzügiges Haus für eine Familie, ein Mehrgenerationshaus oder mehrere Ferienapartments entstehen. Die Dachterrasse, sowie der Schrebergärten, der sich in 20 Meter Entfernung befindet, bieten ausreichend Platz zur Erholung.

Ausstattung

Innen: aufteilbar in 2 Wohneinheiten, doppelt verglaste Kunststofffenster mit Rollläden. Bodenbeläge: Teppich, Fliesen, PVC.

Aussen: Garage mit Dachterrasse, Schrebergarten in ca. 20 m Entfernung. Dacheindeckung: Kunst und Naturschiefer.

Sonstige Informationen

Die Maklercourtage beträgt seitens des Käufers 2.500,-€ zzgl. MwSt. und ist verdient und fällig bei Abschluss des notariellen Kaufvertrages.

Lage

Die hochwasserfreie Lage im beliebten Weinort Neef, nur wenige Schritte von der Mosel entfernt, ist ausgesprochen attraktiv. Im Ort selbst gibt es mehrere gute Restaurants und Gaststätten. Im 5 km entfernten Ediger-Eller gibt es kleinere Geschäfte, Restaurants und Grundschule. Weiterführende Schulen sowie Ärzte, Krankenhäuser, Einkaufszentren, etc. finden sich in Zell und Cochem, zwei der schönsten Städte im Moseltal. In Neef und Umgebung gibt es ein vielfältiges Angebot an touristischen Attraktionen und sportlichen Aktivitäten, wie z.B. Golf, Gleitschirmfliegen, ausgedehnte Rad- und Wandertouren und zahlreiche Wassersportmöglichkeiten. Neef ist durch einen stündlichen Busdienst an das Eisenbahnnetz in Cochem und Bullay angeschlossen, und zum Autobahnanschluss A1 sowie zum Flughafen Frankfurt-Hahn sind es lediglich ca. 30 Minuten, sodass eine gute Erreichbarkeit aus allen Teilen Europas gewährleistet ist.

Die dargestellte Position der Immobilie ist nur eine ungefähre Angabe.

Darstellung der Immobilien mit WP-ImmoMakler und Daten aus